Free account required
10
Free account required
$3,499,000 Sale
Listed 70 days ago
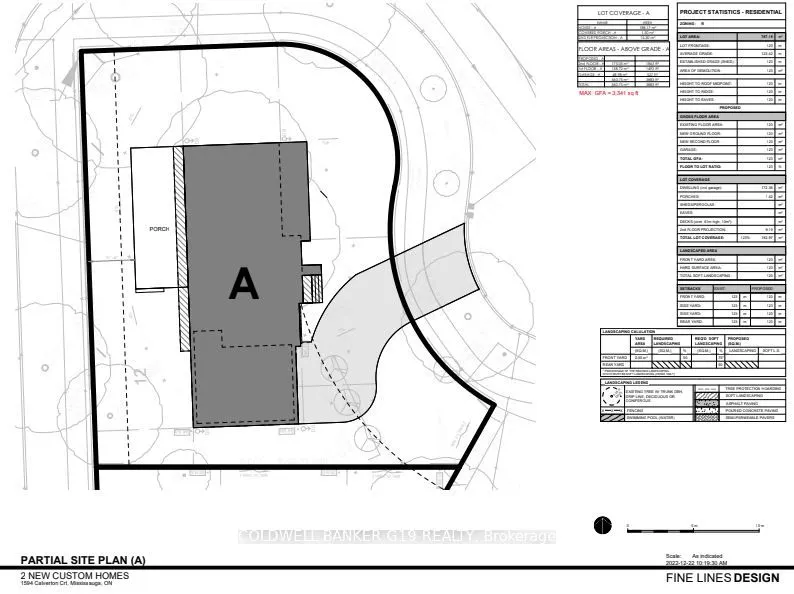
1594 Calverton Court
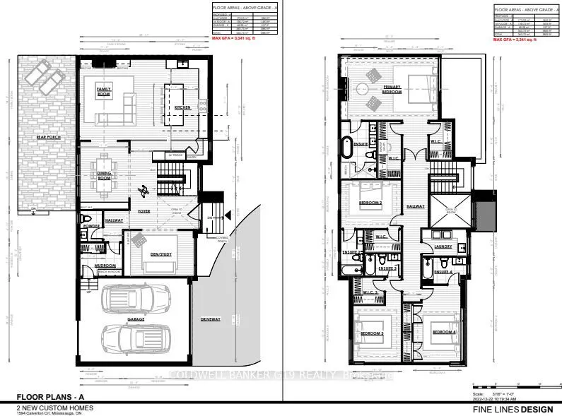
· 4+2
· 6
· 2
· 3000-3500
Listing History
Buy/Sell/Terminated/Expired listing history for 1594 Calverton Court
Key Facts
Key facts for 1594 Calverton Court
Property Type
House, 2-Storey
Parking
Attached 2 garage, 2 parking
MLS #
W12308144
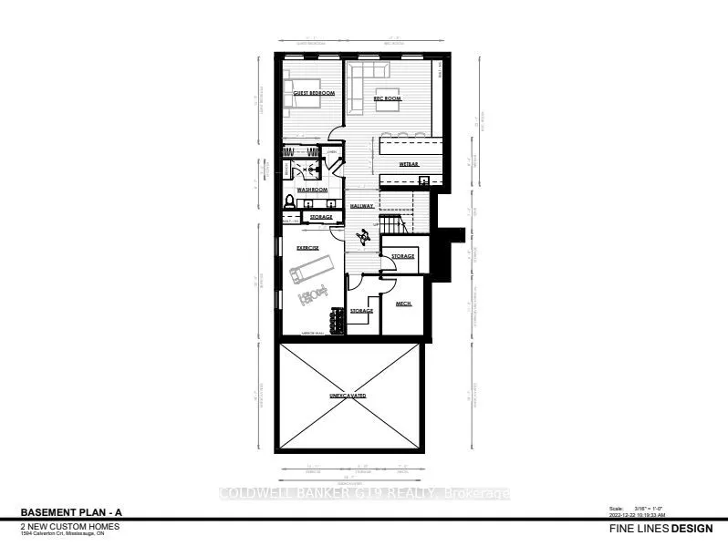
Size
3000-3500 sqft
Basement
Finished,Full
Listed on
2025-07-25
Lot size
104 x 91.0
Tax
-
Days on Market
71
Approximate Age
New
Maintenance Fee
-
Description
Turn Your Dream Home into Reality Brand New Custom-Built Luxury in Prestigious West Mineola! Occupancy Expected: May 2026. Seize a rare opportunity to own a luxury detached home in one of Mississaugas most coveted neighborhoods. This under-construction custom residence in West Mineola offers over 4...,800 sq. ft. of refined living space, designed with premium craftsmanship, thoughtful layout, and timeless finishes. Featuring 4+1 bedrooms and 5+1 bathrooms, this home is the perfect blend of comfort, function, and luxury. Property Highlights: Heated floors in all bathrooms and the basement for year-round comfort. 4 spacious upper-level bedrooms, each with a private ensuite ideal for family privacy and convenience. Finished basement includes 1 additional bedroom and full bathroom perfect for in-laws, guests, or a home office. Customizable hardwood flooring. Modern aluminum windows provide energy efficiency and contemporary appeal. Open-concept main floor with soaring ceilings, large windows, and elegant finishes. Chefs kitchen featuring custom cabinetry and top-of-the-line appliances. Private backyard with a rear patio perfect for entertaining or relaxing family time. Double car garage and private driveway. Prime Location Benefits: Minutes to the QEW, Lakeshore, and the vibrant Port Credit waterfront. Close to top-rated schools, scenic parks, shopping, and public transit. Nestled in a quiet, family-friendly neighborhood known for its charm, prestige, and community feel. Personalize Your Dream Home with construction underway, now is your chance to customize finishes and design elements from cabinetry and countertops to flooring and fixtures. Tailor every detail to match your style and create a home thats uniquely yours. Expected Completion: May 2026. Don't miss out on this exceptional opportunity to own a custom-built luxury home in West Mineola.
Similar Properties (No results)
Courtesy of: COLDWELL BANKER G19 REALTY